【神戸マルイ】1階カレンダリウムD04【物販・PR】三ノ宮駅徒歩1分。店内入って正面の好立地。トラフィックも多く物販・体験ワークショップ・プロモーションにも最適なスペースです。※最低利用日数7日間













アカウントをお持ちの方はログインしてください。
スペースについて
【お問合せ前に下記内容を必ずご確認のうえお問い合わせください】
・料金・営業時間
・利用可能用途
・設備・什器
・受付期間
・利用の流れ
・注意事項
・キャンセルについて
*お問い合わせへの返信は3~5日以内を目途に順次ご返信致します。
*電話での問い合わせは受け付けておりません。
*記載のある内容への質問はご返信出来かねます。
神戸の中核エリアに立地し、駅周辺にはオフィスビルや文化施設が集積し、多くの人で賑わっています。
ホテルも多く、北野異人館・南京町・メリケンパーク等の観光の拠点ともなっています。
立地は買回性の高い大型店が集積する神戸随一の繁華街として、広域からの集客力が非常に高いエリアにあり、三宮と元町を結ぶ中心商店街「三宮センター街」に面し、JR三ノ宮駅ともペデストリアンデッキで直結する好立地です。
雑貨・アクセサリー・食物販を展開してお客さまの入店が多いフロアとなります。
🎉🎉ご出店者様募集中🎉🎉
下記カテゴリーを展開中の企業様、クリエイター様 絶賛募集中です!
お気軽にお問い合わせください♪
https://omemie.0101.co.jp/inquiries/event?space_id=543
★☆★☆★☆★☆★☆★☆★☆★☆★☆★☆★☆★☆★☆★☆★☆★☆★☆★☆★☆
【神戸マルイフロアガイド】
下記URLよりご確認ください。
https://www.0101.co.jp/083/shop-guide/floor.html
【フロアマップ】
本スペースのフロアマップの詳細については、下記URLよりご確認頂けます。
https://www.0101.co.jp/083/info/?from=01_pc_st083_top_head-floor
利用料金
- 平日19,800円/日〜
- 土日祝29,700円/日〜
■区画の空き状況をカレンダーで確認いただきお問い合わせください。
■最低利用日数7日間
【リピート割対象区画】
リピート割について
最終出店日から1年以内に再出店のされる場合15%の割引が適用
※割引対象スぺースは”固定賃料”が掲載されている区画に限ります
※割引は1週間以上のご出店で適用となります
※繁忙期など割引が適用できない期間がございます
※割引に関してご不明な点がございましたらお気軽にお問合せ下さい
■【お問い合わせについて】
※「〇」お問い合わせ可は、出店の確約ではございません
※出店には審査がございます
■【スペース利用料金の支払い方法】
※クレジットカード払いか口座振り込みを選べるようになりました
※年会費永年無料でポイントがたまるエポスカードについて
詳しくはこちら>>https://bit.ly/49GZgr3
■【掲載賃料の変動について】
※クリスマスやバレンタインなどの繁忙期は掲載価格とは異なる料金でのご案内になる場合がございます
※掲載賃料は不定期で変更になる場合がございますので予めご了承ください
■2025年8月1日 現在
- 最低7日間から利用可能
利用可能用途
- ポップアップストア・商品販売
- 食物販・食品の販売
- 販促プロモーション
- 展示会・受注販売会
- 撮影・ロケ
- 募金・NPO活動
- 個展・ギャラリー・作品展示
- 音楽・演劇・公演イベント
- 勉強会・ワークショップ
- その他
営業時間
- スペースの営業時間
- 11:00〜20:00
- 利用可能時間
- 11:00〜22:00
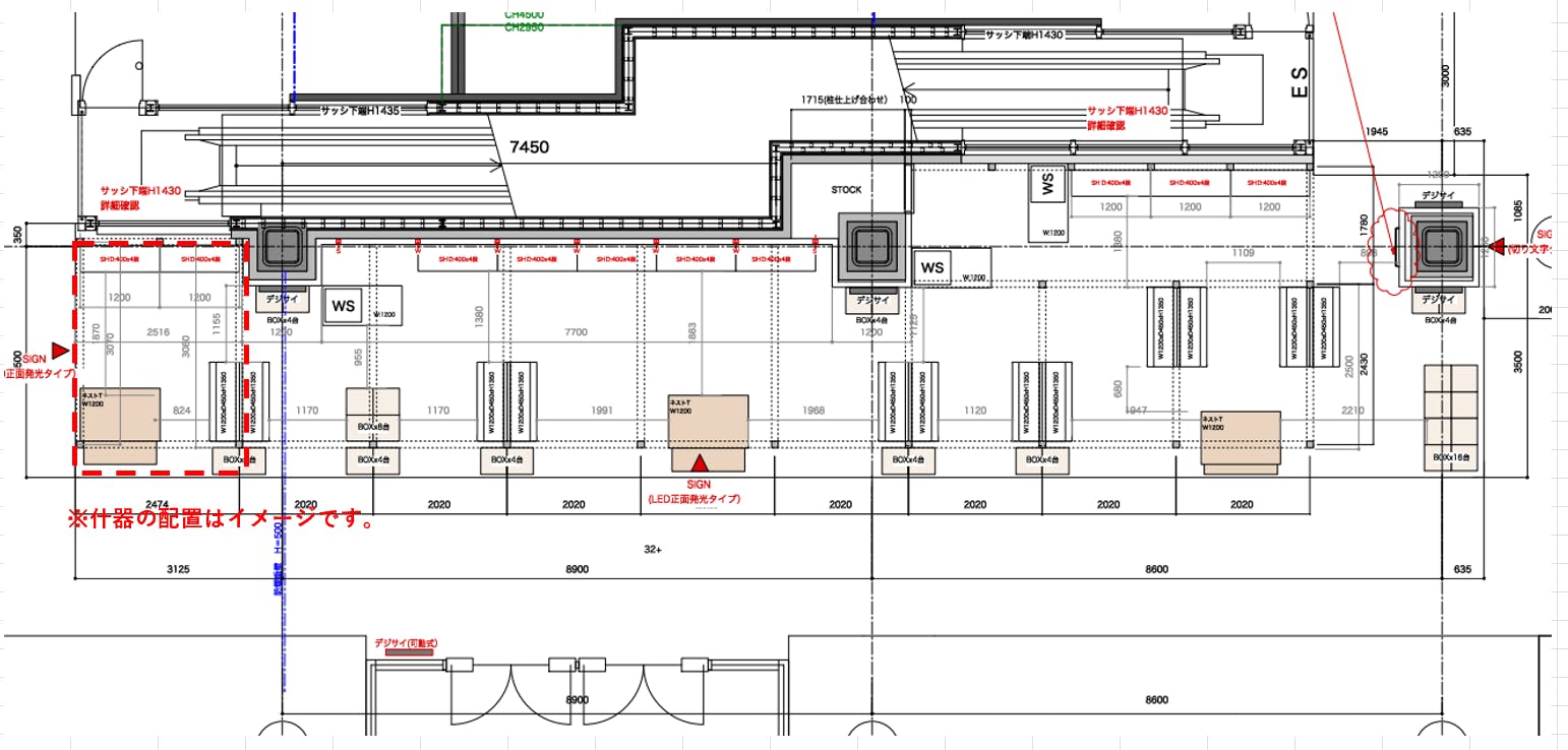
- 図面・フロアマップ
![図面・フロアマップ[0]](https://shopcounter.imgix.net/floorplans/ce/a9/cea931211010a32e89d24824ba81dbc8035f2f833743a03c78bb4a3fdfe3b5ba176154200176edefe6.jpeg?auto=format%2Ccompress&ar=3%3A2&ixlib=react-9.8.1)
![図面・フロアマップ[1]](https://shopcounter.imgix.net/floorplans/ce/a9/cea931211010a32e89d24824ba81dbc8035f2f833743a03c78bb4a3fdfe3b5ba1761542001c360de32.jpeg?auto=format%2Ccompress&ar=3%3A2&ixlib=react-9.8.1)
商材別のスペース利用可否
スペースで展開や販売が可能な商材についてはオーナーによる審査がございます。歓迎・可能となっている商材についても、ご利用をお約束するものではございません。詳しくはスペースオーナーまでお問い合わせください。
歓迎
可能
条件あり
NG
- ファッション
- メンズファッションレディースファッションユニセックスインナー・ルームウェアキッズ・ベビー・マタニティスポーツシーズナルウェアジュエリー・アクセサリーメガネ・アイウェア腕時計靴バッグ・革小物ファッション雑貨和服・着物古着その他ファッション
- フード・飲食
- スイーツ・洋菓子和菓子パンお弁当・惣菜軽食・ホットスナックコーヒー・紅茶その他飲料ワイン・洋酒日本酒・焼酎・地酒食材・調味料物産展・マルシェキッチンカー・移動販売野菜・果物・生鮮食品その他フード・飲食
- インテリア・生活雑貨
- インテリア寝具・ベッド家具・家電キッチン雑貨・調理器具掃除用品・生活便利品文房具手芸・ハンドメイドDIY用品・日曜大工園芸・ガーデニング花・盆栽・ドライフラワー犬・猫・ペット日用雑貨食器・陶磁器その他インテリア・生活雑貨
- 生活サービス
- 携帯キャリア・格安SIMインターネット・プロバイダ電気・ガスウォーターサーバーハウスクリーニング・家事代行定期宅配リサイクル雑貨・古本買取査定・金券ギフト・プレゼント冠婚葬祭資格・習い事リフォーム住宅(購入・賃貸)たばこ修理・メンテナンス就職・転職・求人その他生活サービス
- 金融サービス
- クレジットカード保険銀行住宅ローン証券・FX不動産投資その他金融サービス
- 子育て・教育
- ベビー用品ランドセル学習教材・通信教育子供向け教室・レッスン塾・家庭教師おもちゃ・絵本その他子育て・教育
- 美容・健康・医療
- ジム・フィットネスダイエット・健康グッズ美容・コスメ・香水ヘアケア・シャンプー美容家電ヘアサロン・ネイルサロンマッサージ・整体エステ・美容サービス健康食品・サプリメント女性用品・フェムテックコンタクトレンズ医療・医薬品その他美容・健康
- エンタメ・ガジェット
- PC・スマートフォンスマホアクセサリーガジェットゲームアニメコミック・マンガアイドル・芸能人おもちゃ・ホビー楽器・音楽機材CD・DVD・本・雑誌Webメディア・アプリテレビ・ドラマ映画音楽・ライブ演劇占い公営競技・宝くじその他エンタメ・ガジェット
- アート・デザイン
- 絵画・書写真・イラストレーション立体作品・彫刻その他アート・デザイン
- レジャー・スポーツ
- 旅行・レジャーキャンプ・アウトドア野球サッカーバスケットボールゴルフその他レジャー・スポーツ
- 車・バイク・モビリティ
- 車バイク・オートバイ自転車・ロードバイクマイクロモビリティその他車・バイク・モビリティ
- NPO・公共団体
- 地方公共団体・行政・政府外国団体・大使館募金・寄付NPO・ボランティア活動その他NPO・公共団体
- ビジネス・オフィス
- 法人向けサービスオフィス家具・OA機器イベント企画・運営その他ビジネス・オフィス
- その他活動・個人
- その他活動・個人
設備・什器
一般
- 空調
- 電源コンセント無し
- Wi-Fi無し
- 水道無し
- トイレ
- エレベーター
食品・飲食関連
- キッチン無し
- ガスガス/直火の使用は一切不可
- 冷什器用電源無し
- 冷ケース無し
- 冷蔵ストッカー無し
- 冷凍ストッカー無し
- 2槽シンク無し
- フライヤー無し
- 飲食店営業許可無し
- 食品製造許可無し
アパレル・展示関連
- ハンガーラック1200mm 2本
- トルソーレディース 1体
- 試着室無し
- 姿見・全身鏡1台
- 展示棚什器備え付け 移動不可
- ピクチャーレール無し
- イーゼル無し
イベント・セミナー関連
- 机・テーブル無し
- 椅子無し
レジ・決済
- レジ無料貸し出しあり
- カード決済端末無料貸し出しあり
- 両替機丸井貸出レジ使用の場合は館内両替機 無料利用可能
- 入金機丸井貸出レジ使用の場合は館内入金機 無料利用可能
搬入出関連
- 荷捌き場・車寄せ無し
- 搬入出エレベーター利用可能
- 関係者用駐車場(有料)出店者駐車場は無い為、出店自身で近隣コインパーキングを利用
- 事前荷物預かり可前日指定で受け取り可能
お客様向け設備
- 来客用トイレ
- 来客用駐車場(無料)
- ベビー休憩室
その他設備・オプション
◆専用什器あり
・サイズ(幅×奥行×高さ(mm))
親子テーブル1200×750、1000×500 1セット
両面棚1200×900 2台
キューブ400×400×400(MAX18個)
◆有料什器
応相談
◆設備
・区画内ストック:無
・後方ストック:有
利用料金(税込)
- 平日19,800円/日〜
- 土日祝29,700円/日〜
■区画の空き状況をカレンダーで確認いただきお問い合わせください。
■最低利用日数7日間
【リピート割対象区画】
リピート割について
最終出店日から1年以内に再出店のされる場合15%の割引が適用
※割引対象スぺースは”固定賃料”が掲載されている区画に限ります
※割引は1週間以上のご出店で適用となります
※繁忙期など割引が適用できない期間がございます
※割引に関してご不明な点がございましたらお気軽にお問合せ下さい
■【お問い合わせについて】
※「〇」お問い合わせ可は、出店の確約ではございません
※出店には審査がございます
■【スペース利用料金の支払い方法】
※クレジットカード払いか口座振り込みを選べるようになりました
※年会費永年無料でポイントがたまるエポスカードについて
詳しくはこちら>>https://bit.ly/49GZgr3
■【掲載賃料の変動について】
※クリスマスやバレンタインなどの繁忙期は掲載価格とは異なる料金でのご案内になる場合がございます
※掲載賃料は不定期で変更になる場合がございますので予めご了承ください
■2025年8月1日 現在
- 最低7日間から利用可能
地図・アクセス
内覧について
内覧可能ご利用までの流れ
*出店には審査がございます。
*出店には約60日程度のお時間を要します
①お問い合わせフォームよりお問い合わせ
②当社担当者よりご商談アポイント連絡
③利用期間、イベント内容のご確認
④店舗にてお打合せ(利用規則・スペースのご案内)
※遠隔地の方はWEBにて打ち合わせ
※40日前目安
⑤審査通過後、オンライン上での電子契約
※21日前目安
⑥スペース使用料のお支払い
※イベントスタート日の14日前まで
注意事項
ゴミは分別廃棄 調理行為不可 試食は応相談
兵庫県神戸市中央区三宮町で人気のスペースランキング

出店イメージ①






