兵庫県神戸市中央区三宮町で展示会・個展におすすめのレンタルスペース一覧です。ショッピングモール・百貨店などの商業施設や路面店、駅、サロンの貸しスペース・会場が多数。
検索結果10件
1〜10件を表示

















【元町駅5分】アパレル・ファッション関連のポップアップストア・展示会に最適なカインドオル神戸店5Fにあるイベントスペース













【兵庫県 年間人気1位|三宮さんプラザ】各種ポップアップストアやPRイベントに最適な通行量の多い複合商業施設1階にあるレンタルスペース







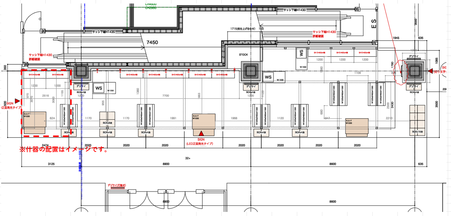
【神戸マルイ】1階カレンダリウムD06【物販・PR】店内入って直ぐの好立地。『フラワーロード』からの視認性抜群。専用什器やデジタルサイネージを完備。物販、プロモーションなどに最適なスペースです。















【三宮駅5分】販促イベントや物販に最適な三宮センター街、さんセンタープラザ目の前の路面スペース








【神戸マルイ】1階カレンダリウムD05【物販・PR】店内入って直ぐの好立地。『フラワーロード』からの視認性抜群。専用什器やデジタルサイネージを完備。物販、プロモーションなどに最適なスペースです。







【三宮センタープラザ】PR催事やアパレルのポップアップストアに最適なエレベーター近くのイベントスペース









【神戸マルイ】1階カレンダリウムD04【物販・PR】三ノ宮駅徒歩1分。店内入って正面の好立地。トラフィックも多く物販・体験ワークショップ・プロモーションにも最適なスペースです。※最低利用日数7日間







【神戸マルイ】1階カレンダリウムD07【物販・PR】エスカレーター横の好立地。専用什器やデジタルサイネージを完備。物販、体験ワークショップ、プロモーションなどに最適なスペースです。※最低利用日数7日間




【神戸マルイ】1階 カレンダリウムF04【食物販・物販】ストック付き(冷蔵庫・冷凍庫あり)スペース





【神戸マルイ】1階 エントランス【PRイベント】メインの入口横、交通量が多い好立地スペース
料金非公開