

展示会・発表会・会議・講演会等にご利用いただけます。 ※収容人数は、レイアウト・状況により異なります。 ※物品販売や入場料制などの有料イベントの場合は別途料金をいただく場合がございます。
| 利用用途 | ポップアップストア 食品販売 販促イベント 展示会・個展 キッチンカー・移動販売 写真・動画撮影 募金・NPO活動 音楽ライブ・演劇 ワークショップ・勉強会 パーティー・懇親会 その他 |
|---|---|
| 住所 | 東京都日野市多摩平2丁目4番1 |
| 周辺の駅 | 豊田駅 |
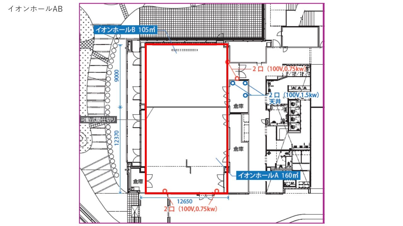
| 広さ | 80.16坪 (265.0m²) |
| 営業時間 | 10:00〜21:00 ※スペースの営業時間です |
| 利用可能時間 | 10:00〜21:00 ※準備時間を含めた、スペースを利用できる時間です |
| 定休日 | なし |
| 内覧 | 可能 |
※このスペースでは扱えない商材です
平日132,000円(税込)/日〜
土日祝132,000円(税込)/日〜
※時間貸し不可 ※利用料金は参考価格(税込)です。 ※ご利用時期・期間・ショッピングモールとしてのイベント性等により変動する場合がございます。 ※2026年4月1日より料金が変更となります。 新料金 165,000円(税込)
※用途により利用料金が異なる場合があります。詳しくはスペースオーナーへお問い合わせください。
クレジットカード
Visa / Mastercard / AMEX / JCB / Diners / Discover が利用できます
銀行振込(請求書)
ショップカウンターの指定口座へお振り込みください
スペースの利用料金は事前決済です
(支払方法の詳細)
東京都日野市多摩平2丁目4番1
GoogleMapsで場所を確認するなし
なし
※商材についてはスペースオーナーによる審査があります。詳しくはスペースオーナーへお問い合わせください。
原則として、下記内容におけるイベントスペースの使用は禁止といたします。 お守りいただけない場合は、イベントを中止いただく場合もございます。 あらかじめご了承ください。 ・法律に違反するもの ・公序良俗に反する、またはわいせつなもの ・他人の信用または名誉・プライバシーを侵害するもの ・国内外の国家・民族等の尊厳を傷つける恐れのあるもの ・商標・著作権等を無断で使用するもの ・政治的または宗教的勧誘のあるもの ・当社の運営・利用を妨げるもの ・火気を使用するもの また、次の場合は使用許可を取り消す場合がございます。 ・使用目的・内容等の変更に関して事前にお申し出のない場合 ・使用規定に違反のあった場合、また使用上危険が予想されるとみなした場合 ・偽りの申請、その他不正手段により使用許可を受けた事実が明らかになった場合 ・使用の権利を譲渡、転貸した場合 ・その他管理上、支障または不適当と認められた場合 ・イベントスペースの使用目的に反した場合 ※尚、使用許可取消に伴う損害等については、一切の責任を負いません。 ※イベントスペースの使用料は、原則イベント実施の7日前までにお支払いいただきます。 また、主催者の都合により使用をキャンセルされた場合は、キャンセル料が発生する場合があります
①本サイトからお申し込み ②審査の上当社にて使用可否をご連絡させていただきます。 ※当社はその理由を主催者に対して返答する義務を負いません。 ※先着順ではございません。 ③ご担当者さまと現場打合せをさせていただきます。 企画内容をヒアリングさせていただき、その他、使用上の注意事項についてご説明いたします。 ※使用目的・内容によっては、使用許可を取り消す場合がございますのでご了承ください。 ④「確認書」「図面・レイアウト」をご提出ください。【イベント実施日の1ヶ月前まで】 ※以後の解約については1ヶ月前よりキャンセル料が発生いたします。 ⑤「工事・業者作業届出書」「イベント臨時駐車許可証申請書(車利用時)」をご提出ください。【イベント実施日の7日前まで】 ⑥指定口座までご入金をお願いします。【イベント実施日の1週間前まで】
解約については1ヶ月前よりキャンセル料が発生いたします。
問い合わせ可
要相談
不可
受付期間外
| 日 | 月 | 火 | 水 | 木 | 金 | 土 |
|---|---|---|---|---|---|---|
1 / 10