






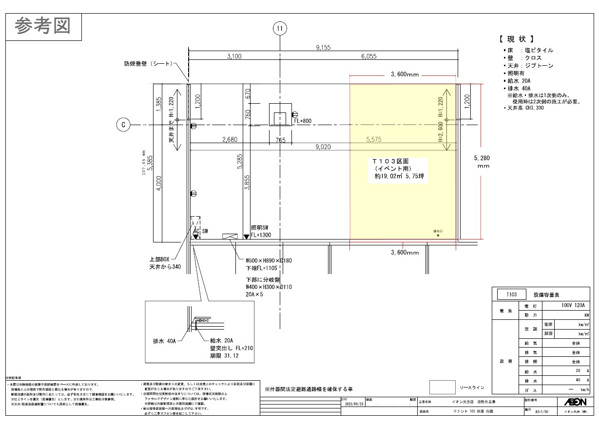
1F レジアウト サーティーワン横区画の催事スペースです。 食品レジのアウトの場所で、お客さまの通りも多いです。 約5.75坪が催事使用できます。(約5.28m×3.6m) ※テナント入店の場合は催事使用不可になります。
| 利用用途 | ポップアップストア 食品販売 販促イベント 展示会・個展 キッチンカー・移動販売 写真・動画撮影 募金・NPO活動 音楽ライブ・演劇 ワークショップ・勉強会 パーティー・懇親会 その他 |
|---|---|
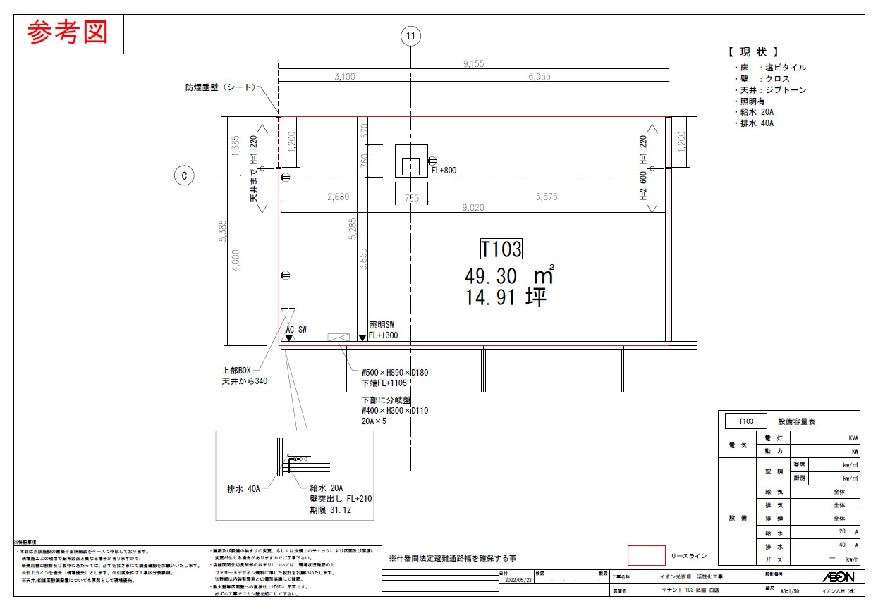
| 住所 | 大分県大分市大字光吉825番地1 |
| 広さ | 14.91坪 (49.3m²) |
| 営業時間 | 08:00〜24:00 ※スペースの営業時間です |
| 利用可能時間 | 08:00〜24:00 ※準備時間を含めた、スペースを利用できる時間です |
| 定休日 | なし |
| 内覧 | 可能 |
※このスペースでは扱えない商材です
平日22,000円(税込)/日〜
土日祝33,000円(税込)/日〜
参考料金(税込)を掲載しており、ご利用時期・期間・ショッピングモールとしてのイベント性・業種により変動する場合がございます また備品使用料、施工費等、スペース利用料以外の費用が発生する場合がございます。 イベントスペースの使用料は、原則イベント実施後、翌月20日までにお支払いいただきます。 詳しくは弊社担当者とのお打ち合わせ時にご確認ください。
※用途により利用料金が異なる場合があります。詳しくはスペースオーナーへお問い合わせください。
クレジットカード
Visa / Mastercard / AMEX / JCB / Diners / Discover が利用できます
銀行振込(請求書)
ショップカウンターの指定口座へお振り込みください
スペースの利用料金は事前決済です
(支払方法の詳細)
大分県大分市大字光吉825番地1
GoogleMapsで場所を確認するなし
なし
※商材についてはスペースオーナーによる審査があります。詳しくはスペースオーナーへお問い合わせください。
※イベント内容については、企画審査がございます。PR内容を都度、打合せをし、内容によっては実施できかねる場合もございます。予めご了承ください。 原則として、下記内容におけるイベントスペースの使用は禁止といたします。 お守りいただけない場合は、イベントを中止いただく場合もございます。 あらかじめご了承ください。 ・法律に違反するもの ・公序良俗に反する、またはわいせつなもの ・他人の信用または名誉・プライバシーを侵害するもの ・国内外の国家・民族等の尊厳を傷つける恐れのあるもの ・商標・著作権等を無断で使用するもの ・政治的または宗教的勧誘のあるもの ・当社の運営・利用を妨げるもの ・火気を使用するもの また、次の場合は使用許可を取り消す場合がございます。 ・使用目的・内容等の変更に関して事前にお申し出のない場合 ・使用規定に違反のあった場合、また使用上危険が予想されるとみなした場合 ・偽りの申請、その他不正手段により使用許可を受けた事実が明らかになった場合 ・使用の権利を譲渡、転貸した場合 ・その他管理上、支障または不適当と認められた場合 ・イベントスペースの使用目的に反した場合 ※尚、使用許可取消に伴う損害等については、一切の責任を負いません。
①本サイトからお問い合わせください。 ②お問い合わせ内容について審査の上、担当者より使用可否をご連絡させていただきます。 ※使用可否について当社はその理由を主催者に対して返答する義務を負いません。 ※先着順ではございません。 ③ご担当者さまと現場打合せをさせていただきます。 企画内容をヒアリングさせていただき、その他、使用上の注意事項についてご説明いたします。 ※使用目的・内容によっては、使用許可を取り消す場合がございますのでご了承ください。 ④「企画書」をご提出ください。【イベント実施日の45日前まで】 ➄催事実施には基本契約の締結が必要です。必要書類のご提出をお願いします。【イベント実施日の45日前まで】 ※提出必要書類(登記簿謄本・印鑑証明書・損害保険など)基本契約窓口:リーシング部 ⑥ 必要書類を実施店舗へご提出ください。【イベント実施日の7日前まで】 ⑦当社指定の方法でご入金をお願いします。【イベント実施後、翌月20日まで】
使用者の都合により使用をキャンセルする場合、所定のキャンセル料が発生いたします。 無断キャンセルについては理由の如何を問わず使用料の100%をお支払いいただきます。
問い合わせ可
要相談
不可
受付期間外
| 日 | 月 | 火 | 水 | 木 | 金 | 土 |
|---|---|---|---|---|---|---|