


























â»å°ç°æ¥ç·ãåæ³è¹æ©ãé§ ããåŸæ©5åãæ£®ç¹éãã«é¢ããèœã¡çããé°å²æ°ã®ã€ãã³ãã¹ããŒã¹ã§ããã¢ãã¬ã«ãã¯ããçµµç»ã圫å»ãé¶èžãåçãªã©ã®å±ç€ºäŒããå€åœèªãåçæ®åœ±çã®åçš®ã¬ãã¹ã³ãç©è²©ãéèªãåºåãªã©ã®æ®åœ±ãªã©å¹ åºãçšéã§ãå©çšããã ããŸãããŸãã¯ãåãåãããã ããã ãåæ³è¹æ©ãé§ ããã®ã¢ã¯ã»ã¹ã®è¯ãã¯å¿è«ã森ç¹éãã«é¢ããªãã,çœæŒå°ã®èœã¡çããé°å²æ°ãšèªç¶å è±ããªã€ãã³ãã¹ããŒã¹ã§ããéå»ã«ãæ§ã ãªæ¥çš®ã®å±ç€ºäŒãç©è²©ãã¯ãŒã¯ã·ã§ããã«å©çšããããŠããŸããå å®ã®ååã»ä»åšã«ããå¹ åºãã€ãã³ãã«å¯Ÿå¿ãå¯èœã§ãããã¬ã€ã¢ãŠããèªç±ã«å€æŽããåçš®ã€ãã³ãå 容ã«ãã£ãŠäœ¿ãåæã®è¯ãã¹ããŒã¹ã§ããæ¬ã¹ããŒã¹ãå©çšããæ¹ã ã®åºé¢ããšç¹ããã®ãæäŒããåºæ¥ãã°ãšããæãã§ã¹ããŒã¹ãéå¶ããŠããŸãããã²ãå©çšãã ããã ãå©çšæéã 11:00ïœ19:00ïŒåºæ¬çãªãå©çšæé:å¿çžè«ïŒ â»ãå©çšæéã«ã¯æ¬å ¥ã»æºåã»å¬äºã»æ¬åºã»çä»ãã»åç¶åŸ©åž°ã»æ¯æ¥çµäºåŸã®ã»ã«ãã¯ãªãŒãã³ã°ã®æéãå«ã¿ãŸããå©çšæéã«ã€ããŠã¯ãçžè«å¯èœã§ããã§ããéããèŠæã«ãå¿ããããŠããã ããŸããæ¯æ¥çµäºåŸãåãä»ãã®æé€çšå ·ã»ã»ã«ãã¯ãªãŒãã³ã°æé æžã«ããæž æããé¡ãããŠãããŸãã®ã§ãååãããããé¡ãç³ãäžããŸãã â»4ïŒ5æã10-12æã®é±æ«ãé£äŒçã¯å¯èœãªéã2æ¥é以äžã®ãå©çšããé¡ãããŸãã â»ãèŠåŠåŸã¯ãå©çšã®æç¡ã«ãããããå¿ ããé£çµ¡ãã ããã ïŒãã®ä»ïŒ âã貞åºããŸã§ã«ããŒããã©ãªãªã»ïŒšïŒ°ã»ããã°ã»ã€ã³ã¹ã¿ã°ã©ã çãå©çšå 容ããããè³æããæåºïŒã¡ãã»ãŒãžäžã§ãå¯ïŒãã ãããå¯èœãªéããäºåèŠåŠã»äºåæåããããé¡ãããŠãããŸãã âèªå® 䜵èšã®ã¹ããŒã¹ã§ãã®ã§ãåºæ¬çã«ã¯éµã®åãæž¡ãã¯ãªãŒããŒãçŽæ¥å¯Ÿå¿ãããŠããã ããŸãã âäž»å¬è æ§ã®åŒ·ãéŠæ°Žã»ã¢ããçåãã宀å ã«æ®ã£ãŠããŸãã€ãã³ãã¯ãæãããŠãããŸãã âãããã®å®€å ãžã®åºå ¥ãã¯ãæãããŠããŸãïŒé€ãç²å°ç¬ã»èŽå°ç¬çã®ä»è·ç¬ïŒ âæ¬å ¥ã»æ¬åºæã«ãè»ããå©çšé ããŸãïŒ1å°ã®ã¿é§è»å¯èœïŒãã客æ§ãžã¯è¿é£ã®ææé§è»å Žããæ¡å ãã ãããïŒãé«éœ¢è ããäœã®äžèªç±ãªæ¹çç¹å¥ãªäºæ ã®ããå Žåãé€ããŸãïŒ
| å©çšçšé | ãããã¢ããã¹ã㢠é£å販売 販ä¿ã€ãã³ã å±ç€ºäŒã»åå± ãããã³ã«ãŒã»ç§»å販売 åçã»åç»æ®åœ± åéã»NPO掻å 鳿¥œã©ã€ãã»æŒå ã¯ãŒã¯ã·ã§ããã»ååŒ·äŒ ããŒãã£ãŒã»æèŠªäŒ ãã®ä» |
|---|---|
| äœæ | æ±äº¬éœäžç°è°·åºè¹æ©1-5-6 |
| åšèŸºã®é§ | åæ³è¹æ©é§ |
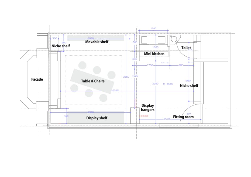
| åºã | 6.35åª ïŒ21.0mÂ²ïŒ |
| å¶æ¥æé | 09:00ã22:00 â»ã¹ããŒã¹ã®å¶æ¥æéã§ã |
| å©çšå¯èœæé | 09:00ã22:00 â»æºåæéãå«ãããã¹ããŒã¹ãå©çšã§ããæéã§ã |
| å®äŒæ¥ | äžå®äŒã»ãã®ä» |
| åšèŸºç°å¢ã» é客ã®ãã€ã³ã | åœã¹ããŒã¹ã¯äžç°è°·ã®èœçããè¡äžŠã¿ã®äžã«ãããŸãã庶æ°çãªååºè¡ãšäœå® è¡ã®ã¡ããã©äžéå°ç¹ã«äœçœ®ããŠããŸããç®ã®åã®æ£®ç¹éãã¯ä¿³åªã®æ 森ç¹ä¹ åœæ°ã®éžå® ã«ç¶ãéãã§ãäœæ°ã®çæ§ã®ç掻éè·¯ãšãªã£ãŠããã人éããçµ¶ããããšã¯ãããŸãããã客æ§ã¯çæ§åè¯ããéããªæ¹ãå€ãããã§ããã€ãã³ãã®ãã¹ã¿ãŒããŒã¿ããéãããã ããŸãããåœæ¹ã«ãŠå°å·ã»ããŠãããŠæ²ç€ºããç¡æãµãŒãã¹ãè¡ã£ãŠããŸãããã©ã·ãDMã®è¿é£é åžã«ã€ããŸããŠããçžè«ã«å¿ããŸãã2020幎ã«ã¬ã³ã¿ã«ã®ã£ã©ãªãŒã»ã¹ããŒã¹ãšããŠæ¬æ Œã¹ã¿ãŒãããŠãã6幎ç®ãè¿ããŠè¿é£ã®çæ§ã«ãããªãèªç¥ããŠé ããŠãããçæ§ã€ãã³ããæ¥œãã¿ã«ããŠããã£ããããŸãã ãå©çšããåŸ ã¡ããŠãããŸãã |
| å 芧 | å¯èœ åœã¹ããŒã¹ã¯ã§ããéãäºåèŠåŠããå§ãããŠãããŸããå 芧ã«ã€ããŸããŠã¯ããåžææ¥æãè€æ°æããŠé ããŸãããåœæ¹ã®ã¹ã±ãžã¥ãŒã«ã調æŽãããŠããã ããŸãããªãŒããŒãçŽæ¥ã察å¿ãããŠããã ããååãä»åšãå©çšäžã®çæäºé ãã»ã«ãã¯ãªãŒãã³ã°ãªã©ã«ã€ããŠçްããã説æãããŠããã ããŸããçæ§å€§äœ1æéïœ1æéåããããããŠãã£ãããšã芧ã«ãªããåçæ®åœ±ãªã©ããããŠããã£ããããŸããåçã¯éå¬å Žææ±ºå®çšã®ãèªèº«ã®è³æãšããŠãåãæ±ããã ãããå 芧æã®ç¶æ³ã®åç»ã»éæ¢ç»ãYouTubeã«ã¢ããããããããªããšã¯ãæãããŠãããŸãã |
| ç¹åŸŽ | å±å€ /è·¯é¢ïŒ1FïŒ /é§ åŸæ©5å以å /èªç¶å ãã /ãããã³ã«ãŒå¯ /äºåè·ç©é ããå¯ |
â»ãã®ã¹ããŒã¹ã§ã¯æ±ããªãåæã§ã
å¹³æ¥15,840åïŒçšèŸŒïŒ/æ¥ã
忥ç¥15,840åïŒçšèŸŒïŒ/æ¥ã
ãå©çšæé(çšèŸŒ)ã 15,840åïŒæ¥ 宀å ã¹ããŒã¹ã«ä»éããŠå±å€ã¹ããŒã¹ãå©çšããå ŽåïŒ4,400åïŒæ¥ å±å€ã¹ããŒã¹ã®ã¿ã®å©çšïŒ7,700åïŒæ¥ ãæé貞ã(çšèŸŒ)ã 1,980åïŒæ â»4æé以äžããå©çšå¯èœã§ãã以é1æéããšã«1,980åïŒæã
â»çšéã«ããå©çšæéãç°ãªãå ŽåããããŸãã詳ããã¯ã¹ããŒã¹ãªãŒããŒãžãåãåãããã ããã
ã¯ã¬ãžããã«ãŒã
Visa / Mastercard / AMEX / JCB / Diners / Discover ãå©çšã§ããŸã
éè¡æ¯èŸŒïŒè«æ±æžïŒ
ã·ã§ããã«ãŠã³ã¿ãŒã®æå®å£åº§ãžãæ¯ã蟌ã¿ãã ãã
ã¹ããŒã¹ã®å©çšæéã¯äºå決æžã§ã
ïŒæ¯ææ¹æ³ã®è©³çްïŒ
æ±äº¬éœäžç°è°·åºè¹æ©1-5-6
ãåœã¹ããŒã¹ã¯å°ç°æ¥ç·åæ³è¹æ©é§ ããåæ¹åãžåŸæ©çŽ5åã§ãã俳åªã®æ 森ç¹ä¹ åœæ°ã®éžå® ãžãšã€ãªããéãããæ£®ç¹éããæ²¿ãã«ããããŸãã ãè»ã§ããšé§ ããçŽ2åã§ãããç®å°ã«ãªã建ç©çããªããGoogle mapçã§ã確èªããã ããŸããã幞ãã§ããå°ç°æ¥ç·åæ³è¹æ©é§ ããã®é è·¯ãäžèšã«ãŠã説æç³ãäžããŸã ããã§ã¯åŸæ©ã§ãè¶ãããã ãå Žåã®ã¿èª¬æãããŠããã ããŸãã 1ïŒåæ³è¹æ©é§ ã®æ¹æã¯1ãæã§ãã西æ¹åã«çްãéè·¯ã®ååºè¡ããããŸããååºè¡ã®å ¥å£ã¯å·Šã«ãããå®¶ãããããã®ãŸã¡ããããå³ã«ãäžžäºè£œéººãããããŸãããã®çްãååºè¡ãé²ãã§ãã ããã 2ïŒ100ïœã»ã©æ©ããŠé ããšæ£é¢ã«éµäŸ¿å±ããããŸãããã®éµäŸ¿å±ã®åãééãã70ïœã»ã©æ©ããŠé ããšããæ£®ç¹éããã«çªåœãããŸããè§ã«kiitosãšããçŸå®¹é¢ããããŸãããã®è§ã峿ããŠãã ããã 3ïŒãã®éãã170ïœã»ã©é²ãã§ããã ããšãå·Šã«ããŒãœã³ãèŠããŸããSPACE FOUR DIRECTIONSã¯ããããçŽ30må ã®å³åŽã«ããããŸãã
GoogleMapsã§å Žæã確èªããâ»åæã«ã€ããŠã¯ã¹ããŒã¹ãªãŒããŒã«ãã審æ»ããããŸãã詳ããã¯ã¹ããŒã¹ãªãŒããŒãžãåãåãããã ããã
ã»æ¬ã¹ããŒã¹ã¯èªå® 䜵èšã®ã¬ã³ã¿ã«ã¹ããŒã¹ã§ãéããªäœå® è¡ã«ããããŸããè¿é£ãžã®è¿·æãšãªãè¡çºã¯å³çŠã§ãã ã»ãå©çšåžæã®å Žåã¯ããå©çšè ã®ããŒã ããŒãžãããŒããã©ãªãªãéå¬ã€ã¡ãŒãžçãå 容ã®ãããè³æããã³èŠåŠçã®åžææ¥æãSHOPCOUNTERçµç±ã®ã¡ãŒã«ã§ãé£çµ¡ãã ãããç°¡åãªå¯©æ»ããããŠããã ããŸããå¯èœãªéããèŠåŠãå Œããäºåæåãããé¡ãããããŸã(ç¹ã«å±ç€ºã€ãã³ãçã®å ŽåïŒã ã»äžåºã¯å€©åã«ãã䜿çšã§ããªãå Žåã¯æéã¯é ããŸããã ã»è·ç©ã®ååãã¯ååãåŒãåãã§ããŸãããã©ãããŠããèªèº«ã§ãéœåãã€ããªãå Žåã¯ãå¥éãè·ç©ååãåã³ä¿ç®¡æããšããŠ1å1,485åïŒçšèŸŒïŒã«ãŠç³ãåããŸããSHOPCOUNTERçµç±ã«ãŠãç³ã蟌ã¿ãã ããã ã»ãŽãã¯ãå©çšè æ§ãèªèº«ã«ãŠåŠçããé¡ãããŠãããŸãã ããã¿åŠçããªãŒããŒã«äŸé Œããéã«ã¯45Lã®ãã¿è¢1ã€ã«ã€ã440å(çšèŸŒ)ã«ãŠç³ãåããŸããSHOPCOUNTERçµç±ã«ãŠãç³ã蟌ã¿ãã ããã ã»ã¹ããŒã¹å ã¯çŠç ãšèŽããŸããåã®éè·¯ã¯è·¯äžå«ç çŠæ¢åºåãšãªã£ãŠããŸãã ã»åŒ·ãéŠæ°Žãã¢ãããè³éŠå€ã匷ãåãã®æè»å€ã䜿ã£ãååãªã©å®€å ã«åããæ®ã£ãŠããŸããã®ã¯ãé æ ®ããã ããŠãããŸãã ã»SHOPCOUNTERäžã«æ²èŒããŠããåçãïŸïœœïŸïœžïŸïŸïŸãHPãªã©ã«èš±å¯ãªã転çšããããšã¯ã§ããŸãããïŒç¹ã«å»ºç©å€èгåçã«ã€ããŠã¯åçãéå®ïŒ ã»å©çšè (äž»å¬è ïŒã®æŒé£ãªã©ã®é£²é£æã¡èŸŒã¿ã¯å¯ã§ãããããŒãã£çã飲é£ã䌎ãéãŸããã«ã€ããŸããŠã¯å°èŠæš¡ã§ããã°ãåãããŠãããŸãã ã»æ±æç Žæãçºçããå Žåã¯å®è²»ã«ãŠãè«æ±ãããŠããã ããŸãã ã»å€§ããªé³åºããçºçããã€ãã³ãçã¯ãå¶éãããŠé ãå ŽåãããããŸãã ã»ã®ã£ã©ãªãŒå ã§äœåãã°ããºã販売ããå Žåã®å£²äžéé¡ã®ã³ããã·ã§ã³æã¯ããã ããŸããã販売æã®ã¹ã¿ãã確ä¿ããé£éã»å è£ çŽã»çŽè¢çã¯ãå©çšè åŽã§ãçšæãã ãããééã®ç®¡çã¯ãå©çšè ã«ãŠãé¡ãããŸãã ã»å±ç€ºäœåãååã«ã€ããŠã®ç£èŠã»ç®¡çã»ä¿å šã«ã€ããŠã¯ãå©çšè æ§ã®è²¬ä»»ã«ãŠãé¡ãããŸããç«çœãçé£ããã®ä»äžæ ®ã®äºæ ãæå®³çã«å¯ŸããŠåœæ¹ã¯äžå責任ãè² ããŸããã倩åã»å°éãªã©ã®èªç¶çœå®³ã«ããæœèšã«è¢«å®³ãçããããã«äœ¿çšäžå¯ãšãªã£ãå Žåã¯ãã¬ã³ã¿ã«æéã¯å šé¡ãè¿ãããããŸãã ã»åœã¹ããŒã¹ã®èº¯äœãèšåãååãç Žæãæ±æãçŽå€±ãããå Žåã®è£ä¿®è²»çšã¯ãå©çšè è² æ ãšãªããŸããã䜿çšã®éã«ã¯ååãæ°ãã€ããã ãããæ¿è«Ÿãªãæ¹é ãå£ïœ¥å€©äºïœ¥åºåã³èšåéšåã«å¡è£ åã³éããžã»ã¬ã ããŒãçã®äœ¿çšã¯çŠæ¢ãšããŸãã ã»äœ¿çšå 容ã®å€æŽããããã¯äœ¿çšæš©ã®è»¢è²žã»è²æž¡ã¯ãæãèŽããŸãããç³èŸŒã¿æã«ç¢ºèªãããŠããã ãããå©çšè ããã³ååå 容ã»å±ç€ºå 容ãšç°ãªãå Žåã«ã¯ã䜿çšäžã§ãã£ãŠãåãæ¶ããããã¯äœ¿çšåæ¢ãããŠé ãããšãããããŸããæéã®ãè¿éã¯èŽããããŸããå°ããã®å Žåã®æå®³è£åã¯ããããŸããã ã»ã客æ§ã®åæãåŸãããšãªãå人æ å ±ã第äžè ã«é èšã»æäŸããããŸãããäœããæ³åŸã«å®ããæš©éã«åºã¥ãéç€ºãæ±ããããå Žåãä»ã®ã客æ§ã®æš©å©ãå©çãåèªãä¿¡çšçãä¿è·ããçºã«å¿ èŠãšå€æããå Žåã¯äŸå€ãšããŸã ã»æ·å°å ã¯å šé¢çŠç ãç«æ°å³çŠãšãªã£ãŠãããŸããççºç©çå±éºç©ã®æã¡èŸŒã¿ãåºããæãããŸãã ã»æ·å°å å€ã§ã®å€§å£°ãéšé³ãã¿ãã³ã®ãã€æšãŠãªã©ãè¿é£ãžã®è¿·æè¡çºã¯åºããæãããŸãã(ã¿ãã³è·¯äžçŠæ¢åºåã«ãªã£ãŠããŸãïŒ ã»ã䜿çšäžã«çºçãããŽãã¯å¿ ããæã¡åž°ãäžããããŸããåœã¹ããŒã¹ã¯ã»ã«ãã¯ãªãŒãã³ã°ããé¡ãããŠãããŸãã䜿çšäžåã³çµäºåŸã¯ããã€ã¬ãå«ãå©çšã¹ããŒã¹å šãŠã«ã€ããŸããŠãåãä»ãã®æé€çšå ·ã«ããæž æããé¡ãããããŸãã(æé€æ©ã»ïŸïœ¯ïŸïŸã»ïœžïŸïœœã»æŽå€çïŒ ã»å©çšæœèšã®çŸç¶å埩ã¯ãå©çšè åŽã«ãŠè¡ã£ãŠããã ããçµäºæã«åœæ¹ã¹ã¿ããã確èªã»ç¹æ€ãè¡ããŸãã ã»æ·å°å ã¯ããããªã©ã®åç©ãå ¥ãããšã¯ã§ããŸãããïŒç²å°ç¬ãä»å©ç¬ãèŽå°ç¬ãé€ãïŒ ã»è¿é£ã§ã®ãã©ã·é åžãåŒã³èŸŒã¿ããŸãã¯ããã«æºããè¡çºã¯ã§ããŸããã ã»é§è»å Žã¹ããŒã¹ã¯æ¬å ¥ã»æ¬åºæ1å°ã®ã¿ç¡æã§å©çšå¯ã§ããäºåãç³èŸŒã¿ãå¿ èŠã§ããè€æ°å°ã®å Žåããè»ã§æ¥èšªãããã客æ§ã¯è¿é£ã®ææé§è»å Žå©çšããé¡ãèŽããŸãã ã»ã䜿çšäžã«ã¹ããŒã¹å ãåœæ¹ã¹ã¿ãããåºå ¥ãããå ŽåããããŸããäºããäºæ¿äžããã ã»ãã®ä»ã宿åã¯ããã«é¡äŒŒããçµç¹ã®æŽ»åãå§èªãè³åè¡çºãè¬ç©ã®äœ¿çšçäžåã®éæ³è¡çºåã³åè¯ãªé¢šä¿ç§©åºãä¹±ãæãã®ããè¡çºã颚çŽè¡çäžåé¡ãšãªãããå¬ããå ¬åºè¯ä¿ã«åãããæ³åŸãæ¡äŸããã®ä»äžåã®æ³çèŠå¶ã«ããææãçŠæ¢ãããŠããç©åã»ééç©ãŸãã¯ççºç©ãæªèãæŸã€ç©ãçºç«ããããç©ç建ç©ã®ä¿å šäžãŸãã¯è¿é£ã«è¿·æãåãŒãå¯èœæ§ã®ããç©ã®æã¡èŸŒã¿ãåºããæãããŸãã â»å ¥å®€æã¯ãã¡ããã§ãããé宀æãå¿ ããªãŒããŒã«ã声ãããã ãããïŒäœãèšããã«åæã«é宀ãããŠãéµãæãéãããŸãŸã«ãªã£ãŠããããšããããŸããïŒ
ãå©çšã«ããããŸããŠã¯ãéå¬å 容ã®å¯©æ»ããããŠããã ããŸãã äºåèŠåŠæã«ããŒããã©ãªãªãäœåãªã©ããæç€ºé ããã°ãšæããŸãããèŠåŠãé£ããããã§ããããSHOPCOUNTERã®ã¡ãã»ãŒãžäžã§ããŒã ãºãŒãžãInstagramãããã°çã瀺ããã ããã
å¥çŽç· çµããå©çšéå§æ¥ã®8æ¥åãŸã§:ãå©çšæéã®50% å©çšéå§æ¥ã®7æ¥åãŸã§:ãå©çšæéã®75% å©çšéå§æ¥åœæ¥:ãå©çšæéã®100%
åãåããå¯
èŠçžè«
äžå¯
å仿éå€
| æ¥ | æ | ç« | æ°Ž | æš | é | å |
|---|---|---|---|---|---|---|
1 / 1