






「学芸大学」駅徒歩5分。ビル1棟に3種のロケーションがある建物の3Fのイベントスペースです。1・2Fは普段はカフェとして運営しております。アパレルの展示会や撮影スタジオとしてのご利用や、ワークショップ等に最適です。大きな窓から入る自然光が印象的な白壁・白床のお部屋です。真っ白な空間なので、室内の自由度が高く、お客様次第で可能性の広がる白箱スタジオです。メイクルームも完備しております。 ※1棟に3種のロケーションのあるイベントスペースです。関連スペースをご覧ください。 【利用時間】 9:00~18:00 ※時間外利用の相談可。料金詳細をご覧下さい。
| 利用用途 | ポップアップストア 食品販売 販促イベント 展示会・個展 キッチンカー・移動販売 写真・動画撮影 募金・NPO活動 音楽ライブ・演劇 ワークショップ・勉強会 パーティー・懇親会 その他 |
|---|---|
| 住所 | 東京都目黒区鷹番3-24-15 |
| 周辺の駅 | 学芸大学駅 |
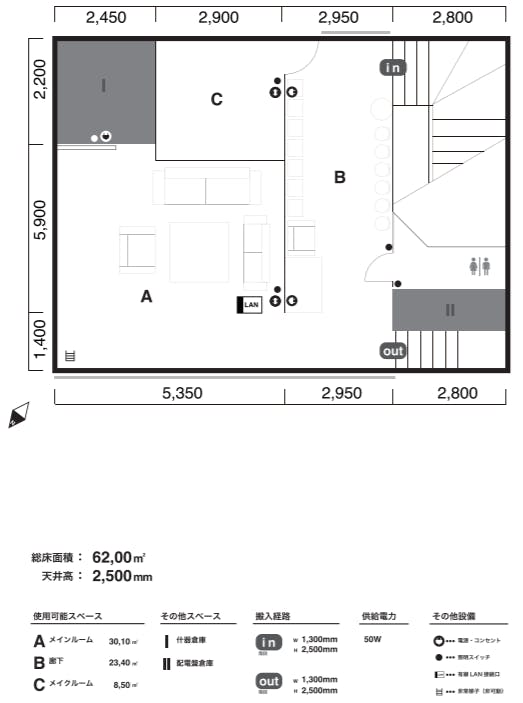
| 広さ | 18.75坪 (62.0m²) |
| 営業時間 | 09:00〜18:00 ※スペースの営業時間です |
| 利用可能時間 | 09:00〜18:00 ※準備時間を含めた、スペースを利用できる時間です |
| 定休日 | なし |
| 内覧 | 可能 |
| 特徴 | 路面(1F) /2F以上 /駅徒歩5分以内 /自然光あり |
平日79,200円(税込)/日〜
土日祝110,880円(税込)/日〜
長期割引は1週間以上の利用で可能です。
【利用料金(税込)】 平日:79,200円/日(9:00~18:00) 土日祝:110,880円(9:00~18:00) ※長時間割引あり ※時間外利用の相談可。下記時間貸し料金参照。 *時間貸し* 平日18:00~21:00間:9,900円/時 平日21:00~9:00間:13,860円/時 土日00:00~24:00間:13,860円/時 ※最低1時間~利用可能。 ※21:00~9:00の深夜のご利用の場合は、3H以上にてお願いしております。
※用途により利用料金が異なる場合があります。詳しくはスペースオーナーへお問い合わせください。
クレジットカード
Visa / Mastercard / AMEX / JCB / Diners / Discover が利用できます
銀行振込(請求書)
ショップカウンターの指定口座へお振り込みください
スペースの利用料金は事前決済です
(支払方法の詳細)
東京都目黒区鷹番3-24-15
GoogleMapsで場所を確認するなし
なし
なし
※商材についてはスペースオーナーによる審査があります。詳しくはスペースオーナーへお問い合わせください。
・飲食が関わる案件の場合、必要となる保健所その他役所への申請、許可などは出店者様にてご用意ください。 ・ゴミはご利用者様ご自身にて処理をお願いしております。 ・スペース内は禁煙と致します。 ・汚損破損が発生した場合は実費にてご請求させていただきます。 ・大声、アンプ、ドラムセット(ミュートでも音がでるためNG)の使用、大音量・ストロボなど強い光を出しながらの撮影は禁止です。周辺が住宅街のためご利用の際はご配慮をお願いいたします。 ・1Fの出入り口、階段、2Fお手洗いなど、お客様の出入りがございます。導線確保のご協力をお願い致します。 ・撮影の際のロケハンは開店準備時間(9:00~11:30)でご覧になれます。営業中のロケハンはできません。(営業中のお店をご覧いただく事は可能ですが、お客様いるフロアの撮影はご遠慮ください。) ・<駐車場>当館裏側に、普通車1台分のスペースがございます。予約制になりますので、ご利用の際は事前にご連絡ください。なお、近隣にはいくつかコインパーキングがございます。 ・搬入、搬出を含む入室時間から完全撤去までがスタジオのご利用料金です。
利用開始日の61~80日前まで:ご利用料金の10% 利用開始日の31~60日前まで:ご利用料金の20% 利用開始日の15~30日前まで:ご利用料金の30% 利用開始日の0~14日前まで:ご利用料金の100%
問い合わせ可
要相談
不可
受付期間外
| 日 | 月 | 火 | 水 | 木 | 金 | 土 |
|---|---|---|---|---|---|---|
1 / 3