

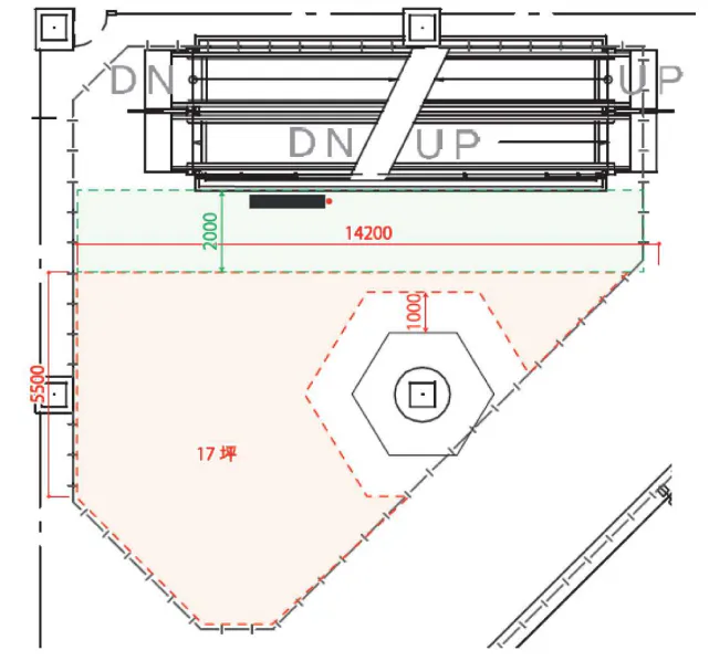
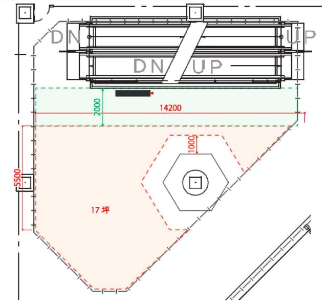
面積 17坪(56m²) 使用料 【平日】250,000円(税抜)/日 【土日祝】500,000円(税抜)/日 図面 PDF 3F 西エスカレーター前 特徴 ・中スペース ・電源あり(100V) ・最大使用電力(1,500W) 付属設備 サイネージ横にコンセント有 立地状況 3F 西エスカレーター付近。 周囲は、物販店舗やペットショップ。 留意事項 高さ制限有(1,500mm以下) お客さま導線の確保厳守 サイネージ前への物品設置は禁止 床=カーペット 2026年度より繁忙期特別料金を設定いたします。 料金については、通常価格に加え100,000円(税別)加算いたします。 新生活春休み:2026/3/20-4/5、ゴールデンウィーク:2026/4/24-5/10、お盆休み:2026/8/7-8/16、BLACKFRIDAY:2026/11/20-11/30、イオンモール岡山周年:2026/12/4-12/13 詳細につきましてはイベント担当者までお問い合わせください。
| 利用用途 | ポップアップストア 食品販売 販促イベント 展示会・個展 キッチンカー・移動販売 写真・動画撮影 募金・NPO活動 音楽ライブ・演劇 ワークショップ・勉強会 パーティー・懇親会 その他 |
|---|---|
| 住所 | 岡山県岡山市北区下石井1-2-1 |
| 広さ | 17坪 (56.2m²) |
| 営業時間 | 10:00〜21:00 ※スペースの営業時間です |
| 利用可能時間 | 10:00〜21:00 ※準備時間を含めた、スペースを利用できる時間です |
| 定休日 | なし |
| 内覧 | 可能 |
※このスペースでは扱えない商材です
平日275,000円(税込)/日〜
土日祝550,000円(税込)/日〜
※上記の利用料金は税込の参考料金です 備品使用料、施工費等、スペース利用料以外の費用が発生する場合がございます。 イベントスペースの使用料は、原則イベント実施の14日前までにお支払いいただきます。 2026年度より繁忙期特別料金を設定いたします。 料金については、通常価格に加え100,000円(税別)加算いたします。 新生活春休み:2026/3/20-4/5、ゴールデンウィーク:2026/4/24-5/10、お盆休み:2026/8/7-8/16、BLACKFRIDAY:2026/11/20-11/30、イオンモール岡山周年:2026/12/4-12/13 詳しくは弊社担当者とのお打ち合わせ時にご確認ください。
※用途により利用料金が異なる場合があります。詳しくはスペースオーナーへお問い合わせください。
クレジットカード
Visa / Mastercard / AMEX / JCB / Diners / Discover が利用できます
銀行振込(請求書)
ショップカウンターの指定口座へお振り込みください
スペースの利用料金は事前決済です
(支払方法の詳細)
岡山県岡山市北区下石井1-2-1
GoogleMapsで場所を確認するなし
なし
※商材についてはスペースオーナーによる審査があります。詳しくはスペースオーナーへお問い合わせください。
イベントスペースのご利用は、使用目的や企画内容による審査がございます。 事前に弊社担当者と打ち合わせ、審査に必要な資料等のご提出を必須としております。 内容および審査の結果によってイベントスペースのご利用をお断りする場合もございますので、予めご了承ください。 下記の使用目的・内容でのイベントスペースの使用は禁止といたします。 ・法律に違反するもの ・公序良俗に反する、またはわいせつなもの ・他人の信用または名誉・プライバシーを侵害するもの ・国内外の国家・民族等の尊厳を傷つける恐れのあるもの ・商標・著作権等を無断で使用するもの ・政治的または宗教的勧誘のあるもの ・当社の運営・利用を妨げるもの ・火気を使用するもの また、次の場合は使用許可を取り消す場合がございます。 ・使用目的・内容が禁止されているものに該当する場合 ・使用目的・内容等の変更に関して事前にお申し出のない場合 ・使用規定に違反のあった場合 ・使用上危険が予想されるとみなした場合 ・偽りの申請、その他不正手段により使用許可を受けた事実が明らかになった場合 ・使用の権利を譲渡、転貸した場合 ・その他管理上、支障または不適当と認められた場合 ・イベントスペースの使用目的に反した場合 上記がイベントスペースの使用中に発覚した場合、イベント等の実施中であっても即中断、退店いただき、今後一切の開催をお断りする場合がございますのでご了承ください。 なお、使用許可の取消、使用中止に伴う損害等についてイオンモール株式会社は一切の責任を負いません。 掲載しております賃料、諸条件につきましては一例です。イベントスペースは現況優先となります。 詳細は弊社担当者との打ち合わせ時にご確認ください。
①本サイトからお問い合わせください。 ②お問い合わせ内容について審査の上、担当者より使用可否をご連絡させていただきます。 ※使用可否について当社はその理由を主催者に対して返答する義務を負いません。 ※先着順ではございません。 ※以後のキャンセルについてはキャンセル料が発生いたします。 ③ご担当者さまと現場打合せをさせていただきます。 企画内容をヒアリングさせていただき、その他、使用上の注意事項についてご説明いたします。 ※使用目的・内容によっては、使用許可を取り消す場合がございますのでご了承ください。 ④「確認書」「図面・レイアウト」をご提出ください。【イベント実施日の1ヶ月前まで】 ⑤ 当社指定の方法でご入金をお願いします。【イベント実施日の14日前まで】 ⑥ 必要書類、申請書をご提出ください。【イベント実施日の7日前まで】
使用者の都合により使用をキャンセルする場合、所定のキャンセル料が発生いたします。 期日までに必要な書類や提出物等のご対応をいただけない場合や期日までの利用料金のお支払いが確認できない場合、キャンセル扱いとしてキャンセル料を申し受ける場合がございます。 無断キャンセルについては理由の如何を問わず使用料の100%をお支払いいただきます。
問い合わせ可
要相談
不可
受付期間外
| 日 | 月 | 火 | 水 | 木 | 金 | 土 |
|---|---|---|---|---|---|---|
1 / 8