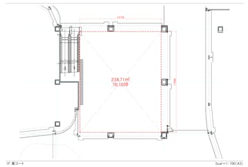
330,000円/日〜

【イオンモール須坂】1F東コート

長野県須坂市